232平新中式设计将现代与中国古典元素结合,去繁化简毫不违和
本方案是新中式风格,其风格是现代与中国古典元素结合,去繁化简,毫不违和,仿佛天生就该同俱一体。结合业主的喜欢安静的性格,为其量身打造了很多能够思考独处的空间,让人感受繁华都市内难觅的安宁和历久弥新的气韵。
客厅在人们的日常生活中使用是最为频繁的,作为整间屋子的中心,客厅值得人们更多关注。装修的时候一定要把大部分的精力放在这个区域,打造一个精美的客厅。

文章插图
蓝调的窗帘和白净的沙发搭配是优雅风情的最佳色彩,让空间的干净与温暖气息在深与浅的碰撞中造就一个诗意的存在。

文章插图
客厅布局开阔,打散空间秩序的串联,来完成视觉维度的延伸,空间井然有序。喧嚣浮华有穷时,静谧安然无尽处。素雅的空间打造出一个飘渺灵动又充满韵味的空间。瞬间让人忘却世俗的繁华与喧嚣。
卧室的装修并非只是摆设一张床这么简单的事情,在卧室装修中,有很多需要注意的地方。现在的卧室,室内功能越来越完善,舒适度也越来越高,基本可以满足主人的任何生活需求。

文章插图
空间是空间生命的容器,他给予人心灵慰藉。“家”是温暖的港湾,因此光源关系中的氛围是暖心的调子,让人享受温暖舒适的空间。
餐厅的设计要注重其实用功能和美化功能,整个空间的主色调应以明朗轻快的颜色为主,特别是代表食品的橙色或黄色,这些色调有刺激人的食欲之功效。同时可以利用灯光和一些小饰物进行调节,以产生不同的情调。

文章插图
餐厅空间秉承优雅浅淡的基调,摒弃了繁冗的色调与修饰,以删繁去简的手法捋自然引入空间。人文情怀浓郁的水墨色使整体空间流泻出沉静淡然的气息。
书房怎么装修?书房装修可以内安装卷帘,不希望被打扰的时候,拉下卷帘即可。拉上卷帘空间又变得通透,保证空间的灵活,不给人拥挤感,方便切换书房的氛围。

文章插图
书房空间中,简单的木色呈现出质感美。以人性化的设计思维出发,使室内的格调和秩序互为烘托、各自延伸,体味统一性的美
玄关的设计只需要考虑鞋子的存放和衣服的挂取就可以了,我们在设计整体鞋柜的时候,中间最好留空,这样可以方便我们存放一些零碎的东西,比如钥匙,钱包等等这样就不用一出门就找钥匙了。

文章插图
玄关轻描淡写,大气明亮。给人一种辽阔的视觉感受。玄关的挂画、与盘旋的灯相呼应,简洁又不不失大雅。静动处之。

文章插图
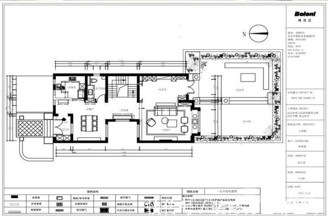
定位为实用户型。一层根据业主生活习性和爱好合理布局划分空间。空间布局灵动,功能分明,流线清晰。客厅采光好。

文章插图
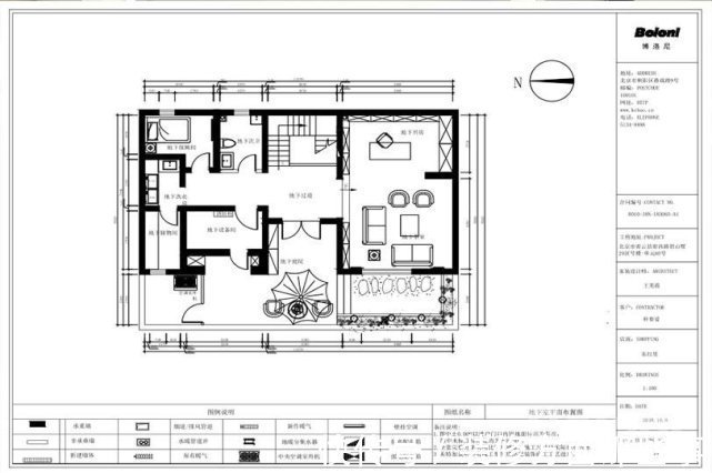
地下室主要以休闲功能为主。考虑到老人退休后茶余的乐趣。可以在家种种花、练练字、看看书、品品茶等情操。地下室主要以书房、庭院为主。

文章插图
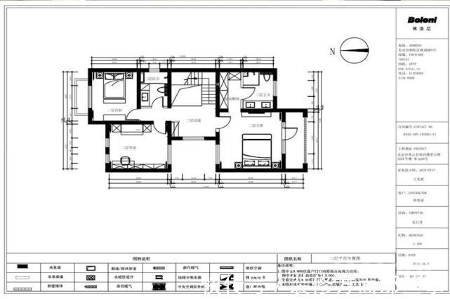
【232平新中式设计将现代与中国古典元素结合,去繁化简毫不违和】二层每个房间都有自己的独立私密空间。南北通透。业主是一对退休了的夫妻。所以整体功能设计上比较方正,规矩传统又不失现代气息。
推荐阅读
- 获232票刷新纪录,被李诚儒狂夸,《导演请指教》黑马导演有多横
- 《导演请指教》黑马出现!232分神作获全场点赞,新人后悔已晚
- 新人导演大逆袭!232分神作获全场好评,黄明昊牛骏峰后悔已晚
- 爸妈的养老宅,98㎡的精装小公寓,效果古典大气,中式风太美了
- 张纪中|52岁陈红一身中式服装参加婚礼,生图下皮肤白到发光,端庄又优雅
- 评剧|三河市群众文化大培训提高文艺骨干演艺水平新举措
- 火箭队|火箭拼了!和杜兰特抢人!2327万先生太硬!有他威少舍不得走
- C罗|五场造7球!今夜C罗踢疯了,35岁的他追平新纪录
- |大咖云集第五届心身健康国际论坛 聚焦新中式健康生活
- 特色美食|再馋也要忍一忍:这些花甲兽药超标232倍,花螺更是不敢吃!|贝类|呋喃西林|兽药|恩诺沙星|水产